À vendre Villa neuve 5 pièces avec garage
Cette villa neuve de 102,39 m² offre confort, modernité et des espaces bien pensés, idéale pour accueillir toute la famille.
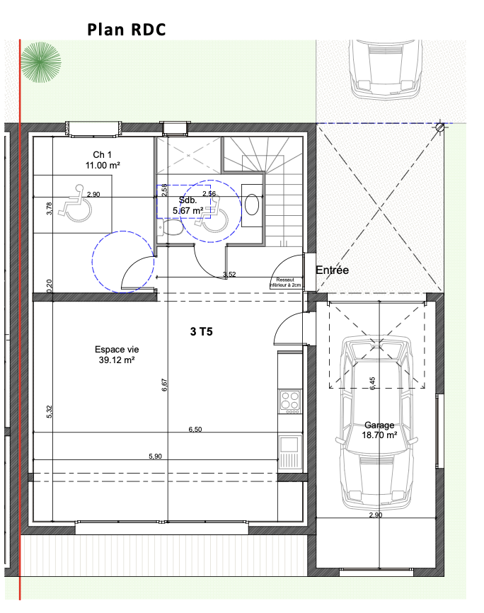
Rez-de-chaussée :
-
Espace de vie lumineux : 39,12 m²
-
Chambre 1 : 11,00 m²
-
Chambre 2 : 11,00 m²
-
Salle de bain : 5,67 m²
-
Garage privatif : 18,70 m²
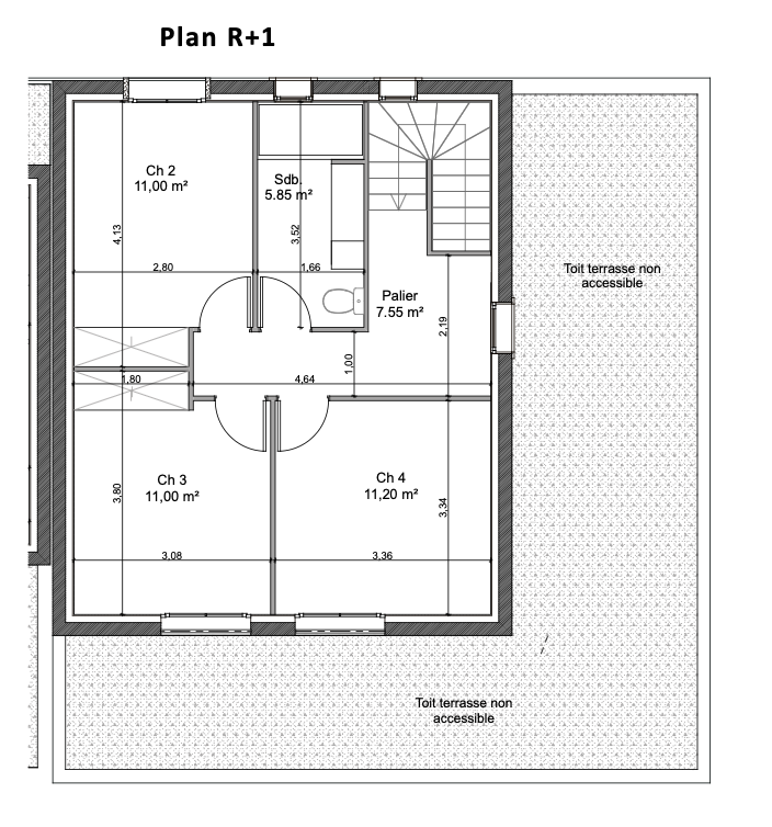
Étage (R+1) :
-
Chambre 3 : 11,00 m²
-
Chambre 4 : 11,20 m²
-
Salle de bain : 5,85 m²
-
Palier : 7,55 m²
Atouts : une grande pièce de vie conviviale, 4 chambres spacieuses, 2 salles de bain, et un garage intégré. Une villa moderne pensée pour le confort familial.
Prix de vente : 334 000 € (honoraires à la charge du vendeur).
Données énergétiques
DPE : Non soumis
Caractéristiques De La Propriété
- Bedroom 2 Dimensions: 25x14
- Bedroom 3 Dimensions: 14x15
- Bedroom 4 Dimensions: 16x13
- Bedroom 5 Dimensions: 11x11
- Condominium
- County: San Diego
- Dining room is 11x8
- Exercise Room
- Forced air heat
- Kitchen
- Living Room Dimensions: 30x29
- Status: Active
- Type: End Unit
Vous avez besoin pour l'installation de l'Yelp de la Fusion de l'API.
Go into Admin > Real Estate 7 Options > What's Nearby? > Create App
Carte
Vous avez besoin pour l'installation de l'API Google Maps.
Go into Admin > Real Estate 7 Options > Google Maps








